The weather turns cold, but home makes people feel particularly warm and at ease.More and more people choose to start from “comfort”, build a residence that best suits their lifestyle, and enjoy a more relaxed time. This case explores a set of160 ㎡ white minimalist four-bedroom apartmentThrough ingenious space planning and the use of log materials, it presents a modern and warm living environment. Each space has been carefully designed, embodying the core of minimalist style: removing complexity and pursuing the integration of function and aesthetic feeling.

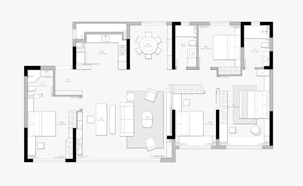
△ Scheme diagram
Design Highlights
▼
① The entrance door is designed with double-sided cabinets and end views, which gives a full sense of returning home ceremony.
② The living room is connected to the balcony to expand the activity area.
③ Remove the original sofa wall and redesign it as a storage cabinet + desk to enhance the storage and reading functions.
④ The kitchen adopts a semi-open design, with pocket doors that can be opened and closed, making space utilization more flexible.
⑤ The customized cabinets of the whole house meet the needs of storage. The original beam-column structure combined with the cabinet design is both beautiful and practical.
Design parsing
Entrance
PART 01
Cabinets are designed on both sides of the entrance to increase storage space as much as possible. The combination of warm white and wood veneer makes people feel relaxed as soon as they enter the door, and the clean environment creates a casual and comfortable atmosphere.

The suspended chest of drawers embedded in the whole wall cabinet is like an end scene, finding a balance between practicality and aesthetics, and the embellished floral arrangement is the finishing touch, adding vitality and temperature to the space.

The combination of personalized decorative painting and shoe changing stool has both a sense of atmosphere and functionality. When I come home from work every day, I open the door and see the warm lights against the white background. The warmth of “welcome home” seems to be within reach.

Study room
PART 02
The entrance extends to the open study, which is connected to the living room, so that the interaction between families is always smooth. The open layout also allows sunlight to fill the desk, sofa and every corner freely.


Custom full wall bookcase combined with coffee bar to maximize space. A long solid wood table is placed behind the sofa, so that you can freely switch between reading, office, leisure, party and other modes.


Sitting here on the weekend morning, the sun shining on the desk, making a cup of coffee and opening a book, I feel happy spontaneously. When you are not busy, leisure is the best state.

Living room
PART 03
The living room is developed in a minimalist tone, with light-colored soft-light bricks paved throughout, and the openness of the space is expressed through the walls and ceilings. The TV background wall is based on warm white and combined with black blocks, just like black and white works of art, which not only avoids emptiness, but also adds layers to the space.

After the balcony is merged into the living room, the load-bearing wall that cannot be dismantled is cleverly decorated with the help of the cabinet, which integrates the living room and balcony, and also increases the storage function. Large floor-to-ceiling windows with venetian blinds allow natural light to fill the entire living room, creating a warm and comfortable atmosphere.


The soft beige sofa complements the log coffee table. In their spare time, family members sit around the sofa, bathed in the sunshine, holding hot tea in their hands, and soft music lingering in their ears. Time seems to slow down at this moment.

Restaurant
PART 04
The dining room is connected to the living room and features an open plan design to form an integral dining area.

The log round dining table with tone-on-tone dining chairs injects natural charm into minimalist spaces with its unique texture and warm tones. Warm time is in the taste of home.

A sideboard is customized on one side of the restaurant to make daily dining and storage more convenient and comfortable.
Kitchen
PART 05
The kitchen adopts an invisible folding door design, which can be completely hidden behind the storage cabinet when opened, making the kitchen and the dining room almost unbounded. At the same time, it meets the requirements of turning on gas and realizes the ideal of an open kitchen.

The U-shaped layout perfectly combines practicality with beauty. Customized cabinets have built-in steam ovens and refrigerators, saving space and making cooking movements smoother. The color scheme of high-grade gray and pure white creates a refreshing and efficient cooking environment.
Bedroom
PART 06
The bedroom shows the other side of minimalist style, focusing on tranquility and comfort.
Bedroom 1
The master bedroom creates a peaceful atmosphere with soft tones and warm lighting, and venetian blinds introduce natural light to create a pleasant and comfortable sleeping environment.


Customized whole-wall wardrobe on the side of the bed, sufficient storage space is the guarantee for parents to keep it tidy for a long time. The wardrobe at the end of the bed extends from the outside to the bay window, which has both reading and dressing functions. Custom shelves are made on both sides of the non-removable bay window, and the leisure area is reserved to add a sense of leisure to the bedroom. In the details, it can be seen that the residents insist on the quality of life.
Bedroom 2
The white bedding is paired with the log bed frame for minimalism and comfort. Large windows allow full sunlight in and white curtains sway lightly to add layers to the space.

The custom-made high cabinet at the end of the bed, and the handleless cabinet door design avoids visual clutter and continues the overall minimalist language.
Toilet
PART 07
The bathroom is separated from wet and dry, and white sanitary ware and storage cabinets are selected, which is simple and practical. Clean lines and bright space design make this a private corner to relax.

sum up
Every moment of life is given a unique meaning in this minimalist home. Although the decoration is small, it is just right, so that the space is not cold. Whether living or working, it can bring infinite inspiration and tranquility here.

