The owner of this case is a young lady. She has her own unique opinions on the decoration style of the house and prefers simple and fresh space. Therefore, the designer focuses on the reasonable spatial layout planning, aiming at creating a home environment that is in line with the temperament of the owner.

▲ Original structure diagram

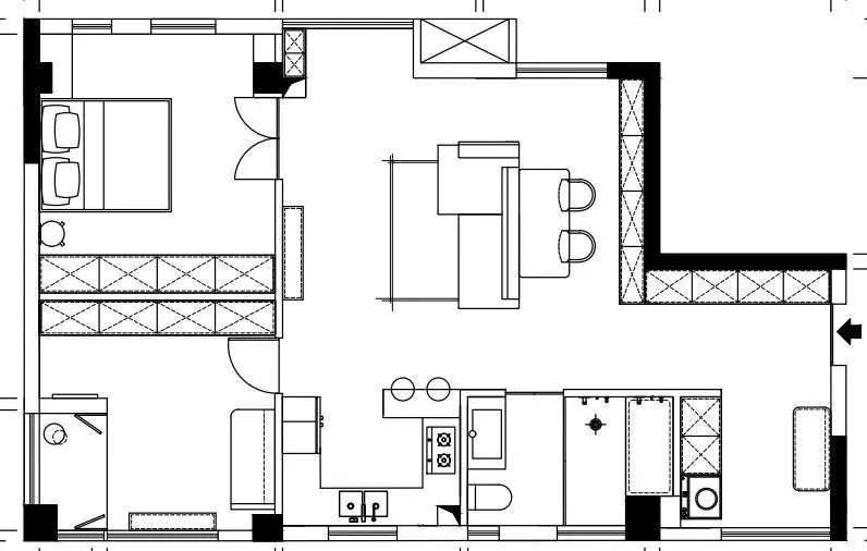
▲ Floor layout plan
| Porch |

The porch area is relatively open, and the designer has made it a multi-functional entrance space.

On the right side of the entrance door, a minimalist entrance cabinet reaching the top is customized, and an open compartment design is combined to meet diverse storage needs.

On the side of the balcony, a drawer cabinet, a laundry area and a hand-washing area are arranged to realize a one-stop moving line of putting bags, changing shoes, changing clothes and washing hands at home.

| Living room |

Walking into the living room, it feels extra spacious and bright. The designer cleverly uses log furniture and clean lines to combine modernity with natural elements to create an elegant and comfortable atmosphere.

Floor-to-ceiling windows on both sides maximize light into the interior, paired with white linen curtains to soften the tone of the space and create a peaceful, comfortable feel.

The living room cancels the traditional TV wall and uses a movable TV stand to meet the daily viewing needs.

The design of the living room is simple and practical. The whole house adopts the classic combination of cream white and wood color, showing an attractive, comfortable and clean Korean style.

The beams between the guest and dining rooms are made of artistic paint to make a natural texture treatment, which is conspicuous but not obtrusive. When paired with log furniture, the entire space presents a unified and natural design sense.
| Restaurant |

The restaurant is located behind the sofa, and the integrated design of the guest and dining room extends the space vision without obvious partitions, making the space more flexible and free.

A log dining table exudes a natural atmosphere, and the clear wood grain complements the rattan chandelier and pure white sideboard, which is just the right blend of clean, natural and warm comfort elements.
| kitchen |

The kitchen adopts an open design, and a small island platform is added on the left side to connect with the stove, which expands the worktop, which can be used as both a dish preparation area and a coffee corner, making daily life more convenient.
| Bedroom |

The bedroom is a comfortable, quiet space, with soft tones and minimalist bedding, paired with plush carpets, adding a sense of warmth.

The bedroom is also designed with two floor-to-ceiling windows, so you can enjoy the outdoor scenery while lying on the bed, which also enhances the style and sense of luxury of the whole space.

Pure white double doors are selected, and the simple and clean lines enhance the three-dimensional sense and enhance the overall texture.
| Bathroom |

Arrange the toilet sink and toilet on the same side, leaving space on the left side for the bathtub and shower area.

Frameless glass is used on the left and right sides to separate wet and dry, making the space more refreshing. There are shelves on the wall, which can not only prevent moisture, but also classify toiletries to keep the countertop clean and tidy.

